Outsource Your Small-Firm QA

Your designs deserve execution without surprises. I provide detailed coordination and code reviews for small firms that need QA support without additional headcount.

Think of me as your fractional QA department. Let me help you cut down RFIs and improvised solutions before they become job site issues.

Illuminated curved millwork panels reflecting onto a plaster ceiling
Modern red house with outdoor space

For Small Architecture Firms: External QA / Coordination Support

Better drawings mean fewer surprises and less stress on site. I review your DD and CD sets for coordination issues and code compliance—think of me as your QA department, minus the overhead.

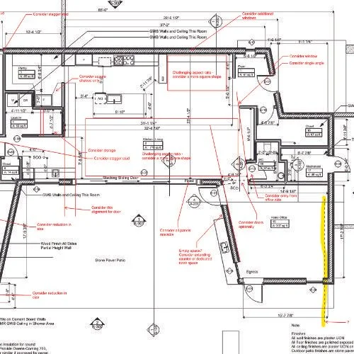
I have caught ceiling depth mismatches, uncoordinated columns, missed slab steps, missed drains on plumbing plans, omitted equipment, and outdated schedules. Fresh eyes on a project can find the kind of issues that can turn into expensive surprises (or compromised design choices!) in the field.

Typical support includes:

  • Peer review of construction sets for single-family and small commercial projects

  • IBC/IRC compliance checks on life safety, egress, and basic code diagrams

  • Coordination pass across architectural, structural, and MEP drawings

  • Redlines and issue lists focused on clarity, constructability, and consistency

Reviews are performed on your PDF drawing set. I can mark them up directly or issue a separate printable report with a checklist.

Engagements can be per-set or hourly.

Book a Small Firm Review
A modern shower with two overhead showerheads, a handheld shower, and a tiled wall. Cove lighting.
Construction site with unfinished wooden cabinets with measurement marks and drawers in progress, tools placed on the countertop, and a cluttered workspace.
Interior of a house under construction with exposed wooden framing, HVAC ductwork, and unfinished walls. Tools and construction materials are scattered on the floor.
A construction site showing wooden framing for a building wall with electrical wiring, metal brackets, and some markings on the wood.
A section of an architectural review with Status, Section, Requirement, and Proposed headings visible.
A technical sketch showing the difference between current and proposed angles of a structure.
Comparison of existing and proposed urban street views with cars, palm trees, buildings, and sky.

Outsource Your HOA Reviews

Plan Compliance and Design Review for HOAs and Communities

I help HOAs and architectural review committees make consistent decisions that actually make sense. The approvals process can be opaque and I work with HOAs to make the process smoother and more predictable for the board, for homeowners, and for their architects.

Services include:

  • Plan compliance review against existing community guidelines for all proposed renovations and new buildings

  • Clear written and illustrated reports for boards, residents, and their architects

  • Assistance creating, editing, and clarifying design guidelines and standards over time, so that design decisions are clearer for the community and easier to defend and communicate for the Board

The goal is consistent, understandable decisions that support the character of the community while giving owners and designers a workable path through the process.

Book an HOA Consultation
Architectural floor plan of a building with various rooms, walls, and structural details, labeled with measurements and specifications in red text.

10-Issue Review

I will find the top 10 issues in your drawing set before it goes out for permit, pricing, or client review. A 10-issue review is $500 and has a fast turnaround time.

A close-up image of a checklist or table with items related to architectural and interior design considerations, such as site placement, access, lighting, and kitchen functionality.

Detailed Coordination Review

Reach out a few weeks before your CD deadline. I'll run code compliance, check coordination across disciplines, and flag anything vague enough to generate an RFI or fat allowance. For most projects the detailed review is $3000.

Architectural floor plan showing HVAC, ductwork, and light wiring with annotations for installation details.

HOA Review for Boards

For HOA boards and architectural review committees evaluating individual submittals and refining their rules. Individual building reviews typically range from $150–$800 depending on complexity; rule and guideline work is billed hourly. Use the form below and mention your role; I’ll follow up with a suggested scope and fee structure.

Book a Review

If you send a download link and a project description I can give a guaranteed price in the reply. I will confirm scope, price, and timing before starting any work and your documents will not be shared.

Review turnaround is typically 5-10 business days, depending on the scope of the review.